本文へスキップ
住宅・マンション・土地のご相談は
株式会社あたごハウス
電話でのお問い合わせは
088-879-8782
〒780-0051 高知県高知市愛宕町4丁目1-23
物件詳細
detail
=サーパス北本町第2=
江陽小学校・城東中学校も徒歩圏内。
何かと便利な北本町。ぜひご検討下さい。
駐車場は引継ぎ可能です。
物件写真
物件概要
価格
1,580万円
物件NO
5326
所在地
高知市北本町4丁目
専有面積
69.05㎡
建物構造
RC造11階の5階
建築年月
1996年2月
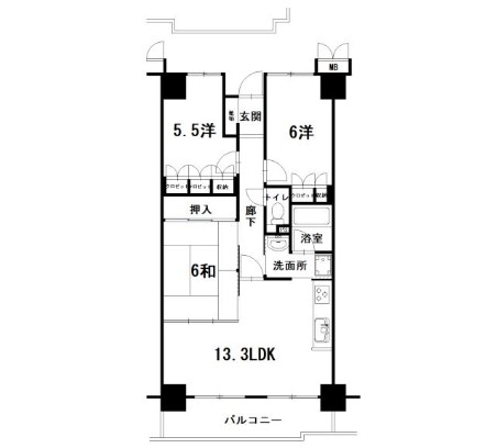
間取り
3LDK
13.3LDK、6洋、5.5洋、6和
管理費
6,9000円
月額
27,600円
修繕積立金
11,700円
駐車場
9,000円
このページの先頭へ
ナビゲーション
top page
トップページ
real estate
新着情報
company
会社案内
access
アクセス
contact us
お問合わせ
バナースペース
ペットと暮らせる物件
別荘・リゾート・セカンドハウス
注目物件情報