本文へスキップ

住宅・マンション・土地のご相談は

株式会社あたごハウス

電話でのお問い合わせは088-879-8782

〒780-0051 高知県高知市愛宕町4丁目1−23

物件詳細detail

=高知市春野町南ヶ丘7丁目=
南ヶ丘で住宅を探している方、ご検討ください。
南側は開けており、眺望・日当たりとも良好です。
ハウスメーカーの住宅、きれいに利用されています。
車は3〜4台、駐車可能です。
所有者様が居住中ですので、内覧の際は調整いたします。

物件写真


物件概要

価格 2,880万円
物件NO take
所在地 高知市春野町南ヶ丘7丁目
土地面積 226.81u(68.60坪)
延床面積 111.00u(33.57坪)
建築年月 2005年4月
駐車場 3〜4台
建築構造 軽量鉄骨造2階
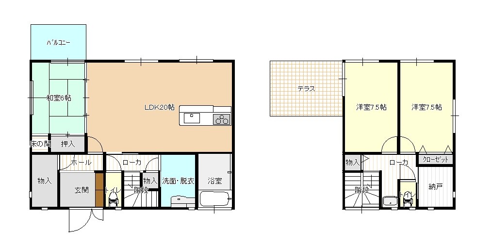
間取り (2F)7.5洋、7.5洋、テラス
(1F) 20LDK、6和、バルコニー